0
Retour

Les Abymes (97139)
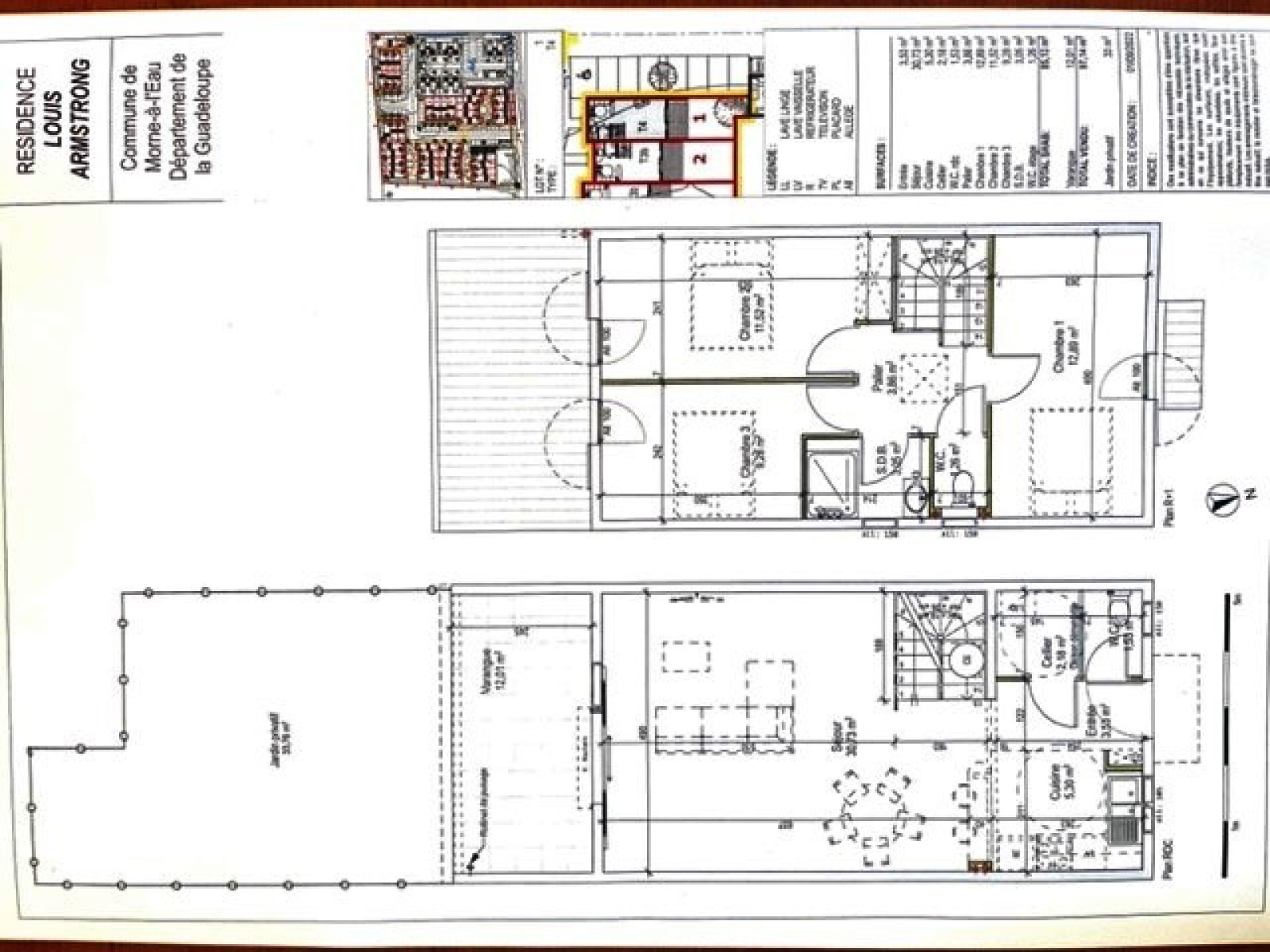
LIMITE ABYMES ET MORNE A L'EAU PROGRAMME NEUF DE 44 LOGEMENTS TYPE VILLAS MITOYENNES TYPE F3 et F4

  • à propos de ce
    bien

    BAISSE DE PRIX !! CE NOUVEAU PROGRAMME MODERNE SITUE LIMITE ABYMES ET MORNE A L EAU PROCHE DU NOUVEL HOPITAL EN CONSTRUCTION DES ABYMES CONSISTE EN LA REALISATION D'UNE RESIDENCE SECURISEE DE 44 VILLAS MITOYENNES REGROUPEES EN ILOTS SUR UNE PARCELLE DE PRES DE 8000M2 SITUEE A LA FOIS EN ZONE RURALE PEU DENSE MAIS A POXIMITE QUASI IMMEDIATE DE L'AGGLOMERATION POINTOISE. CHAQUE ILOT DISPOSE D'UN ESPACE EXTERIEUR COMMUN DESSERVANT LES ENTREES INDIVIDUELLES DE CHAQUE HABITATION. LES JARDINS PRIVATIFS SONT IMPLANTES A L ARRIERE DES LOGEMENTS POUR PERMETTRE A CHAQUE RESIDENT DE POUVOIR PLEINEMENT EN PROFITER. SOYEZ LES PREMIERS A RESERVER VOTRE NOUVEAU LOGEMENT EN APPELANT CAPITAL IMMOBILIER ! LIVRAISON 2025


    Exemple villa F4 : Entrée 3.53 m2 - séour 30.73 m2 - cuisine 5.30 m2 - cellier 2.18 m2 - WC rdc 1.53 m2 - palier 3.86 m2 - Chambre 1 : 12.89 m2 - chambre 2 : 11.52 m2 - chambre 3 : 9.28 m2 - sale d'eau 305 m2 - WC étage 1.26 m2 soit 85.14 m2 au total - Varangue 12.01 m2

    • Prix
      318 238 €
    • Code postal
      97139
    • Surface habitable (m²)
      97 m²
    • Surface loi Carrez (m²)
      97 m²
    • Nombre de chambre(s)
      3
    • Nombre de pièces
      4
    • Nombre de niveaux
      2
    • Références
      22126.1
  • Plus d'informations
    financières

    • Prix de vente honoraires TTC inclus
      318 238 €
  • Plus de
    détails

    • Nb de salle d'eau
      1
    • Cuisine
      Américaine
    • Année de construction
      2024
  • la
    copropriété

    • Copropriété
      OUI
    • Lot n°
      15
    • nombre de lots
      44
    • plan de sauvegarde
      NON
    • statut du syndic
      pas de procédure en cours
  • Bilan
    énergétique

    DPE GES
    DPE non concerné

Ce bien
m'intéresse

Nos outils